Galerie

 

BAUQUALITÄT MIT NIVEAU
Ein typisches Friesenhaus mit sehr schöner Architektur und ausgezeichneter Bauqualität. Eine Summe schöner Details schafft eine hochwertige Spitzenimmobilie. Holzsprossenfenster, Reeteindeckung, zweischaliges Verblendmauerwerk, liebevolle Details mit schönen Fliesen und Holzarbeiten.

 

Das Gebäude muss nach den Auflagen der Gemeinde Utersum laut B-Plan Nr. 5b, als ganzes Objekt erworben werden und darf nicht getrennt in einzelne Wohnungen veräußert werden.

 

 

 

Grundstücksgröße: ca.1110 m²

 

 

UTERSUM
das über 600 Jahre alte Dorf Utersum mit seinen urgemütlichen roten Reetdachhäusern im alten Ortskern hat einiges zu bieten. Sehr beliebt ist der feinsandige , breite Strand mit Blick auf die Nachbarinsel Amrum und am Abend die wohl schönsten Sonnenuntergänge. Selbst bei Ebbe kann man wunderbar im Priel vor Utersum baden. Diverse Gastronomiebetriebe sind im Ort zu finden und ein Lebensmittelmarkt und einen Bäcker hat der wunderschöne Ort zu bieten.
Das Haus liegt am Ortsrand von Utersum mit Blick in die wunderschöne Naturlandchaft.

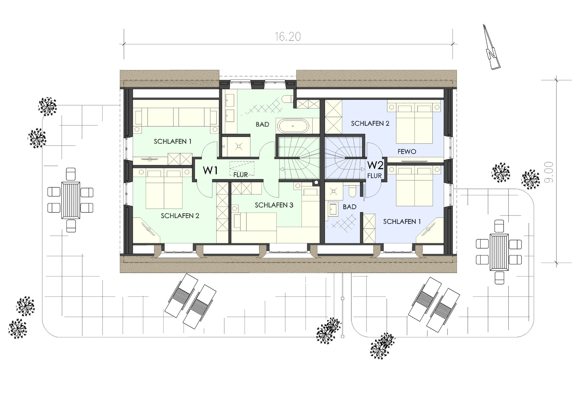
W1( 161,77 m²):

im Erdgeschoss befinden sich ein großes Wohnzimmer mit Essplatz und integrierter Küche, Hauswirtschaftsraum, Abstellraum, Bad und eine Diele.

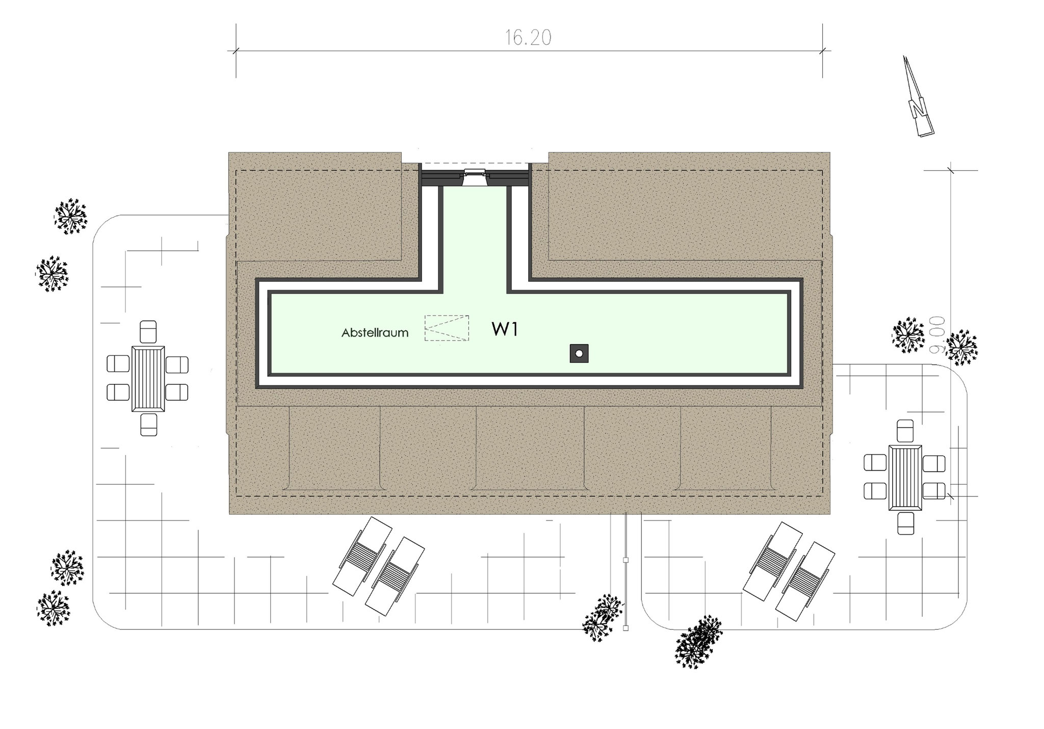
Im Dachgeschoss befinden sich drei Schlafzimmer und ein Bad, sowie ein Abstellraum im Spitzbodengeschoss.

 

In der Gartenfläche wird eine befestigte Terrassenfläche von insgesamt ca. 86,00 m² angelegt.

Diese ist aus dem Wohn-/Essbereich der Wohnung direkt erreichbar. 

 

 

 

W2: Ferienwohnung(77,99 m²):

im Erdgeschoss  befinden sich ein Wohn-Essraum mit integrierter Küche, Bad, Abstellraum und eine Diele.          

Im Dachgeschoss befinden sich zwei Schlafzimmer, Bad und ein kleiner Flur.          

                                                                                     

In der Gartenfläche wird eine befestigte Terrassenfläche von insgesamt ca. 45,00 m² angelegt.

Diese ist aus dem Wohn-/Essbereich der Ferienwohnung direkt erreichbar.

 

 

Grundriss

ERDgeschoss

Dachgeschoss

Spitzboden

Lageplan


Download
Utersum, Reetdachhaushälften Lung Jaat 1
Utersum DHH, Lung-Jaat 1-Neubau.pdf
Adobe Acrobat Dokument 5.1 MB

Lageplan

Inhalte von Google Maps werden aufgrund deiner aktuellen Cookie-Einstellungen nicht angezeigt. Klicke auf die Cookie-Richtlinie (Funktionell), um den Cookie-Richtlinien von Google Maps zuzustimmen und den Inhalt anzusehen. Mehr dazu erfährst du in der Google Maps Datenschutzerklärung.